
























Au RDC d’un immeuble des
années 70 s’étend sur toute la surface de la parcelle un local commercial, qui
servait anciennement au céramiste Jean-Michel CARRE, mécène de l’équipe
multidisciplinaire « L’œuf centre d’étude ».¶ Depuis, le local a connu
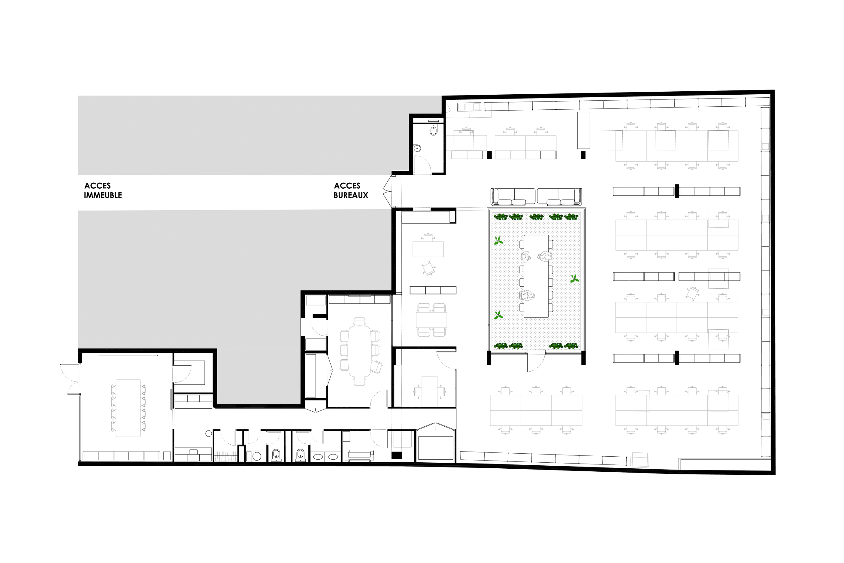
de multiples aménagements qui ont morcelé la surface globale de 350m² en petites
entités.¶ L’objectif du projet
était de purger l’espace des aménagements sans valeur particulière, ajoutés au
fil du temps, et de redonner une qualité spatiale à l’ensemble. A cet effet, le
patio central a été dégagé de l’ensemble des murs qui le touchaient pour
permettre une circulation fluide autour et de créer des perspectives traversant
la profondeur entière de la surface.¶ Les ouvrages témoignant
de l’époque de Jean-Michel Carré ont été sauvegardés et mis en valeur, intégrés
dans une atmosphère sobre.
2017
Paris 10è
350m²
rénovation complète
crédit photo Hervé Goluza